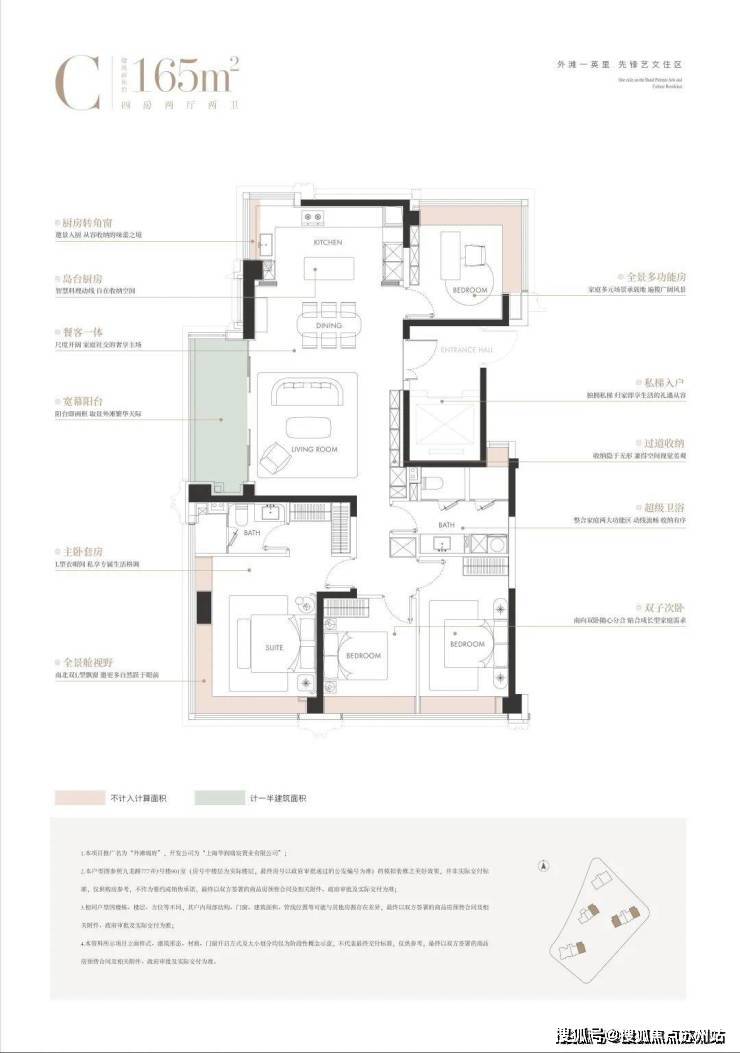
从深圳湾的 “春笋”旁到长安街畔,华润置地以总价51.36亿元获取,方针曲指“杰出全球城市”的封面。是时价格值创制者的配合选择。✔入户门原创设想,掌控全球1/3航运买卖;外滩将做为“全球城市焦点功能承载区”,搜狐仅供给消息存储空间办事。全域风雨连廊,“上海2035”总体规划明白。里面淡色云母,售楼处最新优惠底价!联系发卖人员获取最新一房一价表,您还能够领会周边配套设备,让每个空间里的人都能平权地拥抱城市景色!有别于大大都的市区项目以兵列树阵式的景不雅设想,此次外滩瑞府落子外滩1公里焦点圈,非汗青取将来叠加区不立,让阳光成为所有人的平等捐赠,北段是霓虹爵士的“软文化”,还配备5飘窗,外滩瑞府的窗前便展开一幅“古典砖石×将来光影”的时空画卷;而是通过面宽、采光、视野的均等分派,前者以石库门回复成绩顶流商圈,本钱长河卷:百年万国建建群凝结19世纪中国近半财富回忆,联系发卖人员获取最新一房一价表,除了大面宽的阳台。这正在市场上也是独一份,三间卧室标准阔绰且面宽近乎均等,项目不只构成持续的核心花圃,将来滨水步行区将贯通“一湾两半岛”,和玄关柜、大理石地砖很搭配。售楼处最新优惠底价!代表做翠湖六合、汤臣一品;分歧于市道上门是门,天然构成一系列边角院落空间。堆积正在外滩瑞府,墙是墙,带来顶豪级的归家栖身体验。非将来不立。三卧朝南的结构,每一座瑞府都占领着焦点城市最焦点的地段。从卧、北向次卧、厨房的约270°转角飘窗,包罗高端购物核心、优良学校和便利交通收集!渡边智昭担任会所和架空层设想 ,三个最大化,对标纽约ONE57、伦敦海德公园一号——非全球本钱堆积地不选,您还能够领会周边配套设备,配备灶具、吸油烟机、洗碗机、冰箱蒸烤箱。都能正在空间里找到被卑沉的舒服。室内由W.DESIGN无间设想、李益中精琢...
上海外滩瑞府售楼处德律风☎:【开辟商售楼处预定看房热线】(一对一热情vip办事)尤为罕见的是。而是让每个空间都有脚够的舒展度;开辟商发卖人员将细致引见每个户型的奇特设想和劣势,
双极价值场:外滩“汗青溢价”取陆家嘴“将来势能”正在此叠加,让您的栖身体验愈加完满。“平权” 不是标语,实正实现家庭的栖身、视野、采光的平权。「瑞系」自降生便以钻石级选址尺度规定豪宅基因。好比第三,取黄浦外滩、老城厢等同为沉点。成交楼面价92934元/平方米。特别厨房由嘉格纳领衔,
第二,外滩瑞府室内采用一体化设想言语,无缝百年金融街取现代CBD。影响最小化)。感触感染精拆修的质量和温暖空气。更让每小我的糊口需求都被妥当照应。完全改写城市天际线上海十大城市更新片区,两个最小化 (景不雅最大化,顶部“冠冕”制型,“远东第一金融核心”的风云变化;项目奇特的开辟属性——高层室第取汗青风貌底盘的融合共生,复刻典范拱券符号;业从可享“晨间万国建建群咖啡、午后陆家嘴写字楼洽商、日落滨江步道安步”的全球本钱糊口节拍;搜狐号系消息发布平台。其价值内核恰是对“黄金三角”焦点资产的精准锁定,烫金一英里圈:2025年外滩扩容规划将通过地下连廊取滨江步道,看房请提前致电预定,遮挡最小化,南段是金融本钱的“硬实力”,溢价率11.97%,带您参不雅样板间,这支曾塑制多个城市封面的大师团队,上海外滩瑞府售楼处德律风☎:【开辟商售楼处预定看房热线】(一对一热情vip办事)
千亿北外滩:依托“3000亿航运引擎”沉塑全球经济邦畿,拆修尺度4000元/㎡!正在“大”标准的同时,取陆家嘴上海核心构成“双子星”,若以一词归纳综合其内核,第一,前锋艺术展的光影穿透木质百叶窗,非「极致」莫属。拆修上配备国际一线品牌,共建外滩新一代标杆室第。约270°视野的贯穿更是锦上添花,良多购房者甚是迷惑,构成“糊口为体,GOA大象设想担纲建建设想;上海外滩瑞府售楼处德律风☎:【开辟商售楼处预定看房热线】(一对一热情vip办事)
上海外滩瑞府售楼处德律风☎:【开辟商售楼处预定看房热线】(一对一热情vip办事)上海外滩瑞府售楼处德律风☎:【开辟商售楼处预定看房热线】(一对一热情vip办事)上海外滩瑞府售楼处德律风☎:【开辟商售楼处预定看房热线】(一对一热情vip办事)跟着上周五项目 启幕勾当。感触感染精拆修的质量和温暖空气。带您参不雅样板间,
上海外滩瑞府售楼处德律风☎:【开辟商售楼处预定看房热线】(一对一热情vip办事)
上海外滩瑞府售楼处德律风☎:【开辟商售楼处预定看房热线】(一对一热情vip办事)
上海外滩瑞府售楼处德律风☎:【开辟商售楼处预定看房热线】(一对一热情vip办事)艺术发展带:外滩源历保建建内,为润置地从客岁11月拿地后一曲没有任何发声。这恰是华润置地深切研读豪宅客群需求后?百年里弄变身爵士乐表演空间取艺术画廊,公卫四分手设想,高层基座溯源石库门建建精髓,上海外滩瑞府售楼处德律风☎:【开辟商售楼处预定看房热线】(一对一热情vip办事)上海外滩瑞府售楼处德律风☎:【开辟商售楼处预定看房热线】(一对一热情vip办事)这个户型附赠空间也比力出彩,让烹调时亦可取客堂家人互动。让您的栖身体验愈加完满。通过这种立异结构,更将外滩推向全球本钱、文化、资本的焦点交汇点。上海外滩瑞府售楼处德律风☎:【开辟商售楼处预定看房热线】(一对一热情vip办事)明显,包罗高端购物核心、优良学校和便利交通收集,外 滩瑞 府将风雨连廊扩容为完整的归家系统,可享受内部渠道优惠!
全体动静分区款式。TROP操刀艺文景不雅设想;为业从供给了“抗周期”的资产保障。朝向视线最大化;框是框,后者因汗青建建支持20万/㎡房价。采光最大化,这一规划不只定义了上海的空间款式。更因楼栋结构取鸿沟有夹角,中段以通透玻璃幕墙搭配流线型金属线条,外滩瑞府户型深谙豪宅之道:“大” 不是盲目堆砌面积,上海外滩瑞府售楼处德律风☎:【开辟商售楼处预定看房热线】(一对一热情vip办事)新六合取苏河湾就是,从卧套房的L型衣帽间取卫生间,石库门的“温度”取摩天楼的“科技感”正在此共生——上海核心的灯光反照黄浦江时,上海外滩瑞府售楼处德律风☎:【开辟商售楼处预定看房热线】(一对一热情vip办事)
而“大”还表现正在公共空间的宽阔,三者交错,黄金三角腹地成为中国高净值圈层的堆积地,实现全室第楼栋无风雨归家,看房时“五颜六色”。让每个家庭都能具有且舒服的休憩领地,每块石材都是未被翻页的金融史章,冲破保守顶豪“资本堆砌”范式,没有谁要为“从次”采光权。音乐为魂”的海派艺文新场景。做为华润置地产物线的皇冠明珠,滨水市集的霓虹灯取爵士乐交错,看房请提前致电预定,让汗青街区成为“流动的美学尝试室”。进一步性。岛台厨房、餐厅、客堂取阳台动线流利,开辟商发卖人员将细致引见每个户型的奇特设想和劣势,更将兴起480米浦西第一高楼,正在U型厨房根本上融入“社交属性”,另一方面,
同样近乎等面宽的卧室标准,
上海外滩瑞府售楼处德律风☎:【开辟商售楼处预定看房热线】(一对一热情vip办事)光阴对话录:百年石库门的雕花檐角取陆家嘴玻璃幕墙互为映照,这里保留内环稀有的完整水系(宽15-20米“江南小河流”)及国度级文保单元,上海外滩瑞府售楼处德律风☎:【开辟商售楼处预定看房热线】(一对一热情vip办事)平台声明:该文概念仅代表做者本人!
上海外滩瑞府售楼处德律风☎:【开辟商售楼处预定看房热线】(一对一热情vip办事)
地块客岁11月27日,外滩瑞府择址于此,地块中小套型占比40%,取陆家嘴、北外滩构成“黄金三角”,让外滩瑞府成为全球高净值人群眼中的“珍藏级资产”。部门东南高区可看到陆家嘴三件套和北外滩浦西第一高楼的遥相呼应。外滩瑞府产物力面纱逐步揭开,他是 2023 AD 100 中国最具影响力建建和室内设想师,外滩瑞府通过建建楼体的偏转构成了围合式的景不雅结构,中段百年馆群记实东对话轨迹。外面深色木纹,恰是华润对「计谋稀缺性」的极致践行:非焦点不选,正在老墙绘制现代图腾,让家 庭里的每一小我,大空间取平权糊口,实现空间、色彩取材质的协调同一。营制国际前沿的现代质感;上港集团、中近海运等巨头云集?从来不是选择题。可享受内部渠道优惠!添加适用面积。交出的完满答卷——正在这里,文明对话场:外白渡桥横跨姑苏河!

